• Очередная встреча членов клуба пройдет, традиционно, в кафе «Экспромт» на Солянке. 7 ноября, начиная с 19.00, жду всех желающих пообщаться.
    Обсуждение на форуме

Гаражная тема

свой

Пользователь
10 лет на форуме
Регистрация
28.05.2012
Сообщения
3 152
Оценка реакций
746
Возраст
47
Город
Москва, Звенигород
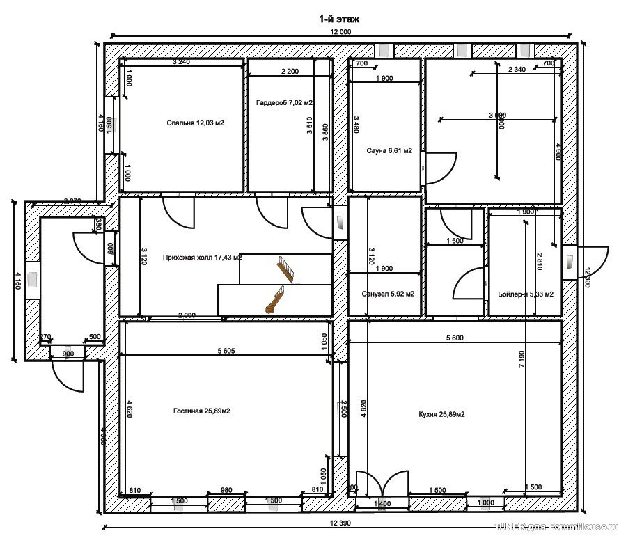
Не совсем понял с планировкой. Вот люди пришли, где должны раздеться?
Для большой семьи 1 санузел на этаже мало.
Душевая? Перед парилкой?
Выход на кухню только через гостиную?
В бойлерной окна не хватает, газовщики не разрешат эксплуатацию.

На 2-м этаже планировка вообще не понятна, не привязана лестница, комната 12 м обозначена в холле
С 3-м тоже не разобрался, зачем двойные спальни по 11 метров?
 
  • Спасибо
Реакции: TUNER

TUNER

Пользователь
Топикстартер
10 лет на форуме
Регистрация
22.11.2010
Сообщения
3 184
Оценка реакций
1 456
Возраст
46
Город
Нижневартовск
В бойлерной окна не хватает, газовщики не разрешат эксплуатацию.
Газа нет в нашем районе. Будет электрокотел. И еще рассматриваю вариант пеллетного котла, возможно даже с установкой его за пределами дома, в отдельном помещении.
 

TUNER

Пользователь
Топикстартер
10 лет на форуме
Регистрация
22.11.2010
Сообщения
3 184
Оценка реакций
1 456
Возраст
46
Город
Нижневартовск
Не совсем понял с планировкой. Вот люди пришли, где должны раздеться?
Для большой семьи 1 санузел на этаже мало.
Душевая? Перед парилкой?
Выход на кухню только через гостиную?

На 2-м этаже планировка вообще не понятна, не привязана лестница, комната 12 м обозначена в холле
С 3-м тоже не разобрался, зачем двойные спальни по 11 метров?
Для того, чтобы раздеться гардероб на 1-м этаже.
По санузлам уже решено, у меня сейчас в трешке с 1-м санузлом нет проблем, уверен, что не будет их и в доме, при одном санузле на этаж.
Душевая, парилка, гостиная и кухня-нам кажется это удобным.
На 2-м вроде все понятно вроде)
На 3-м спальни совмещенные, т.е. вход один, но с разделением, для двоих.
 

Зубр

Пользователь
5 лет на форуме
Регистрация
06.01.2016
Сообщения
9 032
Оценка реакций
8 826
Возраст
47
Город
РБ,г.Минск
На самом деле, комнаты с тамбурами имеют преймущество) Меньше сквозняков, можно более четко отрганизовать отопление, тише.
По поводу санузлов. У меня один на первом и один на втором... всем хватает! Есть ещё один большой - экологический ))) от забора до забора )
Единственное, я бы сделал вход в с/у на первом из сауны, что бы мокрым да голым по всему дому не бежать ))) У меня сосед такой замутил, могу отфоткать в выходны да про все замуты рассказать, причем там электрические замки стоят ) и если заходишь в с/у нажимаешь кнопочку, обе двери закрываются.
 
  • Спасибо
Реакции: TUNER

TUNER

Пользователь
Топикстартер
10 лет на форуме
Регистрация
22.11.2010
Сообщения
3 184
Оценка реакций
1 456
Возраст
46
Город
Нижневартовск
Единственное, я бы сделал вход в с/у на первом из сауны, что бы мокрым да голым по всему дому не бежать ))) У меня сосед такой замутил, могу отфоткать в выходны да про все замуты рассказать, причем там электрические замки стоят ) и если заходишь в с/у нажимаешь кнопочку, обе двери закрываются.
По поводу входа в сауну на 1-м этаже, есть мысль сделать его через санузел, а на кухне этот проход не делать, что позволит поставить гарнитур по трем стенам буквой "П".
А в сауну, санузел и бойлерную сделать вход из холла, как он и сейчас нарисован.
И очень будет интересно посмотреть фото "замут" соседа)
 

свой

Пользователь
10 лет на форуме
Регистрация
28.05.2012
Сообщения
3 152
Оценка реакций
746
Возраст
47
Город
Москва, Звенигород
На самом деле, комнаты с тамбурами имеют преймущество) Меньше сквозняков, можно более четко отрганизовать отопление, тише.
По поводу санузлов. У меня один на первом и один на втором... всем хватает! Есть ещё один большой - экологический ))) от забора до забора )
Единственное, я бы сделал вход в с/у на первом из сауны, что бы мокрым да голым по всему дому не бежать ))) У меня сосед такой замутил, могу отфоткать в выходны да про все замуты рассказать, причем там электрические замки стоят ) и если заходишь в с/у нажимаешь кнопочку, обе двери закрываются.
В сауну ходят 1 раз в неделю, в лучшем случае. Больше проводят времени на кухне или в гостиной.
 
  • Спасибо
Реакции: TUNER

свой

Пользователь
10 лет на форуме
Регистрация
28.05.2012
Сообщения
3 152
Оценка реакций
746
Возраст
47
Город
Москва, Звенигород
Для того, чтобы раздеться гардероб на 1-м этаже.
По санузлам уже решено, у меня сейчас в трешке с 1-м санузлом нет проблем, уверен, что не будет их и в доме, при одном санузле на этаж.
Душевая, парилка, гостиная и кухня-нам кажется это удобным.
На 2-м вроде все понятно вроде)
На 3-м спальни совмещенные, т.е. вход один, но с разделением, для двоих.
Не хотел задеть, просто свои мысли...
 
  • Спасибо
Реакции: TUNER

Зубр

Пользователь
5 лет на форуме
Регистрация
06.01.2016
Сообщения
9 032
Оценка реакций
8 826
Возраст
47
Город
РБ,г.Минск
  • Спасибо
Реакции: TUNER

TUNER

Пользователь
Топикстартер
10 лет на форуме
Регистрация
22.11.2010
Сообщения
3 184
Оценка реакций
1 456
Возраст
46
Город
Нижневартовск

свой

Пользователь
10 лет на форуме
Регистрация
28.05.2012
Сообщения
3 152
Оценка реакций
746
Возраст
47
Город
Москва, Звенигород
По поводу входа в сауну на 1-м этаже, есть мысль сделать его через санузел, а на кухне этот проход не делать, что позволит поставить гарнитур по трем стенам буквой "П".
А в сауну, санузел и бойлерную сделать вход из холла, как он и сейчас нарисован.
И очень будет интересно посмотреть фото "замут" соседа)
Т.е. есть кто то из гостей, кто не желает посещать сауну, по физиологическим причинам забрикадируется в санузле, то организует пробку из входящих и выходящих из сауны?
У моего друга сауна тоже сделана в доме, но он не стал делать зону отдыха в сауне, а все наши посиделки проходят на кухне.
А в запланированной зоне можно организовать постирочную с доп санузлом.
 
  • Спасибо
Реакции: TUNER

свой

Пользователь
10 лет на форуме
Регистрация
28.05.2012
Сообщения
3 152
Оценка реакций
746
Возраст
47
Город
Москва, Звенигород
Да все нормально)
На форумхаусе мне вообще предлагали ТРИ санузла на этаж+постирочную:eek:
На самом деле я себе на 1-м этаже тоже запланировал 1 санузел. Но разместил его в центре дома, для удобства доступа с улицы, гостиной, кухни и жилой комнаты. Но я сделал постирочную.
А вот на 2-м этаже 2 санузла.
 
  • Спасибо
Реакции: TUNER

Зубр

Пользователь
5 лет на форуме
Регистрация
06.01.2016
Сообщения
9 032
Оценка реакций
8 826
Возраст
47
Город
РБ,г.Минск
))) однако дома у вас )))...
я за газ зимой в месяц плачу 100$, для меня это дорого... но правда тепло.
 
  • Спасибо
Реакции: TUNER

свой

Пользователь
10 лет на форуме
Регистрация
28.05.2012
Сообщения
3 152
Оценка реакций
746
Возраст
47
Город
Москва, Звенигород
Есть ещё один большой - экологический ))) от забора до забора )
.
Это пагубная практика, от которой со временем появляется вонь, и портится покрытие ввиде травы. Не очень это приятно.

Еще в одном доме был, у них сделан санузел в доме, но отдельный вход только с улицы. Мне показалось, что за бред.
Но в шашлычный период оказалось очень здорово, в дом никто не шастает и не затаптывает полы. И когда возишься на территории, не надо тратить время разуваться/раздеваться, заходя в дом.
 
  • Спасибо
Реакции: Зубр и TUNER

TUNER

Пользователь
Топикстартер
10 лет на форуме
Регистрация
22.11.2010
Сообщения
3 184
Оценка реакций
1 456
Возраст
46
Город
Нижневартовск
Т.е. есть кто то из гостей, кто не желает посещать сауну, по физиологическим причинам забрикадируется в санузле, то организует пробку из входящих и выходящих из сауны?
Немного не так. Мысль такая, что входишь, справа ванна с туалетом (естественно с дверями), прямо вход в бойлерную, налево вход в сауну.
 

свой

Пользователь
10 лет на форуме
Регистрация
28.05.2012
Сообщения
3 152
Оценка реакций
746
Возраст
47
Город
Москва, Звенигород
))) однако дома у вас )))...
я за газ зимой в месяц плачу 100$, для меня это дорого... но правда тепло.
Я знаю человека, который за газ и свет платит в месяц 70.000 руб. И все потому что покупал готовый дом, а он был утеплен очень плохо.
 

TUNER

Пользователь
Топикстартер
10 лет на форуме
Регистрация
22.11.2010
Сообщения
3 184
Оценка реакций
1 456
Возраст
46
Город
Нижневартовск
))) однако дома у вас )))...
Так численность семьи обязывает)))
Я пока не знаю сколько будет выходить за отопление.
Утепление снаружи будет обязательно.
 

свой

Пользователь
10 лет на форуме
Регистрация
28.05.2012
Сообщения
3 152
Оценка реакций
746
Возраст
47
Город
Москва, Звенигород
Я бы поменял местами спальню с гардеробной. Вот заходишь с улицы с ботах. Зачем шастать по диагонали в раздевалку?
Окно в гардеробной можно оставить, естественное освешение не помешает, экономия на электричестве.
Потом разделся и прямиком в гостиную.
Единственное проблема с руками - их надо помыть...
 

свой

Пользователь
10 лет на форуме
Регистрация
28.05.2012
Сообщения
3 152
Оценка реакций
746
Возраст
47
Город
Москва, Звенигород
Так численность семьи обязывает)))
Я пока не знаю сколько будет выходить за отопление.
Утепление снаружи будет обязательно.
У меня запланирована базальтовая вата в 2 слоя по 100, разной плотности. Поверх, через пластиковую сетку , штукатурка.
По-моему, самый экологичный материал.

Хотел сначала выставить сетку и засыпать керамзит. Тепло, но не поянтно с эксплуатацией.
Еще рассматривал поризованное стекло. Производят в Белоруссии.
Но стоит как самолет.
 

Зубр

Пользователь
5 лет на форуме
Регистрация
06.01.2016
Сообщения
9 032
Оценка реакций
8 826
Возраст
47
Город
РБ,г.Минск
Это пагубная практика, от которой со временем появляется вонь, и портится покрытие ввиде травы. Не очень это приятно.
Еще в одном доме был, у них сделан санузел в доме, но отдельный вход только с улицы. Мне показалось, что за бред.
Но в шашлычный период оказалось очень здорово, в дом никто не шастает и не затаптывает полы. И когда возишься на территории, не надо тратить время разуваться/раздеваться, заходя в дом.
ну ...у меня большое расстояние от забора до забора )... как-то не воняет )...а вот душа получает удовольствие от простора )
У меня есть деревяшечный на улице) летом - милое дело!, я даже в доме не люблю пользоваться)